โรงแรม

SAVVI ARI 4

เสน่ห์ของอารีย์ คือความเป็นย่านที่มีชีวิตและไม่เคยหยุดนิ่ง มีความหลากหลายที่ลงตัว เป็นทั้งย่านที่พักอาศัย สถานที่ราชการ กิจการร้านค้า ทําให้เราได้เห็นกิจกรรมที่แตกต่าง หลากหลายในแต่ละช่วงเวลา

SAVVI Ari 4 Luxury Boutique Residence

คอนโดมิเนียมแบบ Low Rise หนึ่งเดียวใจกลางอารีย์ ซอยอารีย์ 4 ฝั่งเหนือ 

 

พบงานสถาปัตยกรรม ด้วยแนวคิด Layered Sophistication

SAVVI ARI 4 คอนโดมิเนียมเพียง 39 ยูนิต บนทำเลใจกลางอารีย์ อาคารรูปแบบ Low Rise 8 ชั้น ที่ประมวลทุกแรงบันดาลใจอย่างลงตัวในมุมสงบของอารีย์ ให้ทุกคนเป็นส่วนหนึ่งของ Modern Urban Ari Lifestyle โดยเลือกที่จะสร้างระยะ จัดวางพื้นที่และมุมมอง ในการใช้ชีวิตอย่างสุนทรีย์ สำหรับทั้งวันพักผ่อนและวันทำงาน แต่งเติมด้วยวัสดุที่ให้ความพิเศษอย่างอะลูมิเนียมโทนสี Copper สวยงามอย่างมีระดับ เพิ่มความหรูหราและเฉียบคมของอาคาร ทั้งลูกเล่น Frame Facade ยังช่วยทำหน้าที่สร้างมิติให้เกิดแสงเงาที่แตกต่างออกไปในแต่ละช่วงเวลา และสร้างความรู้สึกเป็นส่วนตัวอย่างมีสไตล์ เน้นความโดดเด่นของงานดีไซน์ที่ถูกจัดวางในรูปแบบของ Dynamic Composition เพื่อให้สอดคล้องกับวิถีชีวิตคนเมืองที่ลื่นไหลไม่เคยหยุดนิ่ง

 

 

คอนโดมิเนียมใหม่ใจกลางอารีย์ พร้อมเข้าอยู่และเป็นส่วนตัวที่สุด พร้อมด้วย สระว่ายนำ้วิว Rooftop ให้คุณรื่นรมย์ด้วยมุมพักผ่อนบนชั้นดาดฟ้าของอาคาร ตอบโจทย์ทุกความสุนทรีย์ของทุกการอยู่อาศัย ใช้ชีวิตได้อย่างลงตัวอย่างมีเอกลักษณ์แบบอารีย์

แกลเลอรี่

ข้อมูลโครงการ

100%

ภาพรวมโครงการ 2017.11.27

งานโครงสร้าง

100 %

ติดตั้งระบบ

100 %

สถาปัตยกรรม

100 %

สิ่งอำนวยความสะดวก

Rooftop Outdoor Cinema

Rooftop Infinity Edge Pool

Ari Lifestyle

Double Volume Lobby

Fitness with the view

Home Automation System

Automated Parking System

EV Charger

24hr Security

Shuttle Service to BTS Ari

Rooftop Outdoor Cinema

Rooftop Infinity Edge Pool

Ari Lifestyle

Double Volume Lobby

Fitness with the view

Home Automation System

Automated Parking System

EV Charger

24hr Security

Shuttle Service to BTS Ari

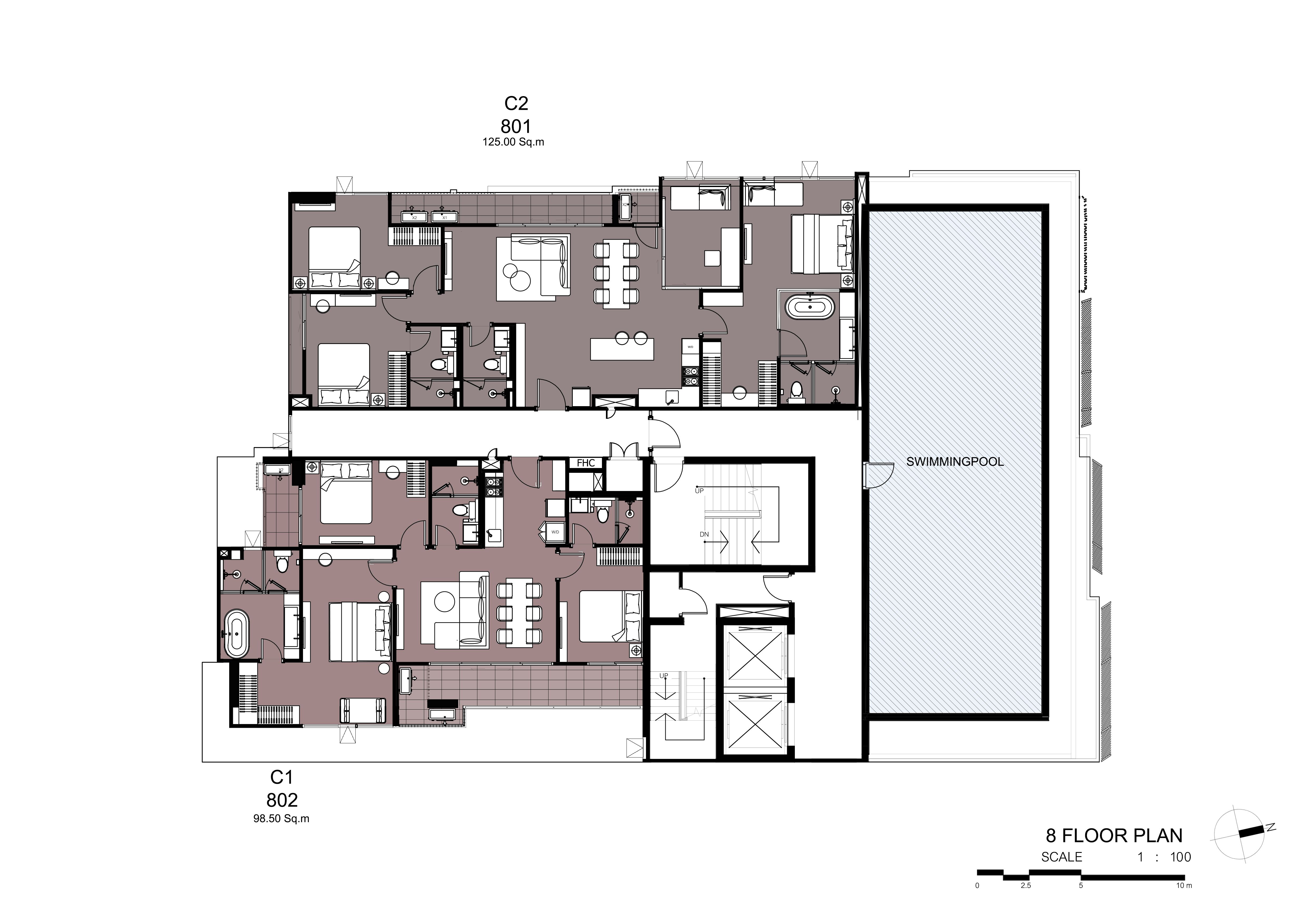
แผนผัง

รูปแบบห้อง

A1

35.31 ตร.ม.

A2

35.39 ตร.ม.

A3

36.38 ตร.ม.

A4

39.00 ตร.ม.

B1

62.00 ตร.ม.

B2

66.70 ตร.ม.

B3

70.70 ตร.ม.

B4

76.90 ตร.ม.

C1

98.50 ตร.ม.

C2

127.00 ตร.ม.

D1 - LOWER

54.00 ตร.ม.

D1 - UPPER

45.50 ตร.ม.

ที่ตั้งโครงการ

ใกล้แหล่งไลฟ์สไตล์

Gump / La Villa Ari / A-One / Big C สะพานควาย / ตลาดจตุจักร / The Season / ตลาดอ.ต.ก. / เซ็นทรัลลาดพร้าว

ใกล้โรงพยาบาล

โรงพยาบาลเปาโล / โรงพยาบาลพญาไท 2 / โรงพยาบาลราชวิถี / โรงพยาบาลวิมุต / โรงพยาบาลพระมงกุฎเกล้า / โรงพยาบาลรามาธิบดี / โรงพยาบาลทหารผ่านศึก

ใกล้สถานศึกษา

วิทยาลัยการจัดการ มหาวิทยาลัยมหิดล / มหาวิทยาลัยหอการค้าไทย / โรงเรียนสามเสนวิทยาลัย

ใกล้สถานีรถไฟฟ้า

รถไฟฟ้าสายสีเขียว สถานีอารีย์ (800 ม.)

โครงการที่คุณอาจสนใจ

เรื่องราวที่น่าสนใจ

Festive Tablescape

Set the scene for joy, warmth, and shared moments.! ต้อนรับช่วงเทศกาล มาครีเอทพื้นที่ใช้เวลา แบ่งปันความสุขร่วมกัน กับการจัดโต้ะปาร์ตึ้ตัวยาว Tablescape เพิ่มประสบการณ์ที่พิเศษระว่างมื้ออาหาร เหมาะสำหรับโอกาสพิเศษช่วง festive แบบนี้ ที่บ้านเราจะกลายเป็นศูนย์รวมของคนที่เรารัก รังสรรค์ความสวยงาม ศิลปะบนโต๊ะในแบบฉบับของคุณเอง Life,curated by you !

NEW PLAN แบบบ้าน “Karl คาร์ล” บูทีคทาวน์โฮม ฟังก์ชันครบ

เปิดโหมดคนเมือง ใช้ชีวิตได้อย่างเต็มที่! พื้นที่ที่ใหญ่ขึ้น โปร่งโล่งขึ้น เพิ่มความเป็นส่วนตัว และเดินทางสะดวก บ้านใกล้รถไฟฟ้า 2 สาย “คิวเรเตอร์ ศรีนครินทร์ - เทพารักษ์”

"SAVVI PHAHOL 2" บูทีคคอนโดมิเนียม

จะดีแค่ไหน หากอยู่ท่ามกลาง Urban Lifes ใจกลาง “อารีย์” ตอบรับได้ครบทุกมิติ แหล่งรวม lifestyle ใกล้ย่านออฟฟิศ และการเดินทางที่สะดวกรวดเร็ว ด้วย รถไฟฟ้า รวมไปจนถึง เสน่ห์ย่านที่มีเอกลักษณ์ ความสร้างสรรค์ ทั้งหมดนี้ที่ทำให้อารีย์ ย่านสุดเท่ห์ติดอันดับโลกในลำดับ 47 จากการจัดอันดับย่านสุดเจ๋งจากนิตยสาร Time Out (2021) แต่ยังคง Feel at Ease ผ่อนคลายกับการใช้ชีวิต ในพื้นที่ส่วนตัวที่มีความ สงบโอบล้อมด้วยพื้นที่สีเขียวของธรรมชาติ

Festive Tablescape

Set the scene for joy, warmth, and shared moments.! ต้อนรับช่วงเทศกาล มาครีเอทพื้นที่ใช้เวลา แบ่งปันความสุขร่วมกัน กับการจัดโต้ะปาร์ตึ้ตัวยาว Tablescape เพิ่มประสบการณ์ที่พิเศษระว่างมื้ออาหาร เหมาะสำหรับโอกาสพิเศษช่วง festive แบบนี้ ที่บ้านเราจะกลายเป็นศูนย์รวมของคนที่เรารัก รังสรรค์ความสวยงาม ศิลปะบนโต๊ะในแบบฉบับของคุณเอง Life,curated by you !

NEW PLAN แบบบ้าน “Karl คาร์ล” บูทีคทาวน์โฮม ฟังก์ชันครบ

เปิดโหมดคนเมือง ใช้ชีวิตได้อย่างเต็มที่! พื้นที่ที่ใหญ่ขึ้น โปร่งโล่งขึ้น เพิ่มความเป็นส่วนตัว และเดินทางสะดวก บ้านใกล้รถไฟฟ้า 2 สาย “คิวเรเตอร์ ศรีนครินทร์ - เทพารักษ์”

"SAVVI PHAHOL 2" บูทีคคอนโดมิเนียม

จะดีแค่ไหน หากอยู่ท่ามกลาง Urban Lifes ใจกลาง “อารีย์” ตอบรับได้ครบทุกมิติ แหล่งรวม lifestyle ใกล้ย่านออฟฟิศ และการเดินทางที่สะดวกรวดเร็ว ด้วย รถไฟฟ้า รวมไปจนถึง เสน่ห์ย่านที่มีเอกลักษณ์ ความสร้างสรรค์ ทั้งหมดนี้ที่ทำให้อารีย์ ย่านสุดเท่ห์ติดอันดับโลกในลำดับ 47 จากการจัดอันดับย่านสุดเจ๋งจากนิตยสาร Time Out (2021) แต่ยังคง Feel at Ease ผ่อนคลายกับการใช้ชีวิต ในพื้นที่ส่วนตัวที่มีความ สงบโอบล้อมด้วยพื้นที่สีเขียวของธรรมชาติ